Workshop Wohnbebauung Hannover – Badenstedt

Workshop Wohnbebauung Hannover – Badenstedt
Bauherr/Auftraggeber

RIC Rose Immobilien Consulting /

KIS Immobilien GmbH & Co. KG

Jahr
2020
Preis
2. Preis
Standort

Badenstedt, 30455 Hannover

Durch die Neubebauung der verfügbaren Grundstücksflächen gelingt es, wieder einen städtebaulich schlüssigen Kontext herzustellen

 

An der Hagenbleckstraße wird ein viergeschossiges Gebäude mit Staffelgeschoss und Tiefgarage vorgeschlagen. Das Gebäude nimmt in Ausdruck, städtebaulicher Körnung und Material Bezug auf den Straßenraum / das Quartier und fasst diesen klar am südlichen Ende.
Die Erschließung der jeweils sechs Wohnungen pro Geschoss erfolgt sehr wirtschaftlich über ein zentrales Treppenhaus. Dieses wird großzügig mit einer Glasfassade zum Hof gestaltet, was viel Lichteintrag und einen Ausblick ins Freie ermöglicht. Somit wird die Erschließung zu einer freundlichen Adresse und einem zentralen und identitätsstiftenden Raum für alle Bewohner.

 

Der Wohnungsmix entspricht den Vorgaben. Die Küchen sind innerhalb der Grundrisse so positioniert, das eine Abtrennung mit geschlossenen oder teiltransparenten Wänden möglich ist. Auch ist die Umsetzung als offene Küche problemlos denkbar. Jede Wohnung verfügt über mindestens einen Freisitz.

 

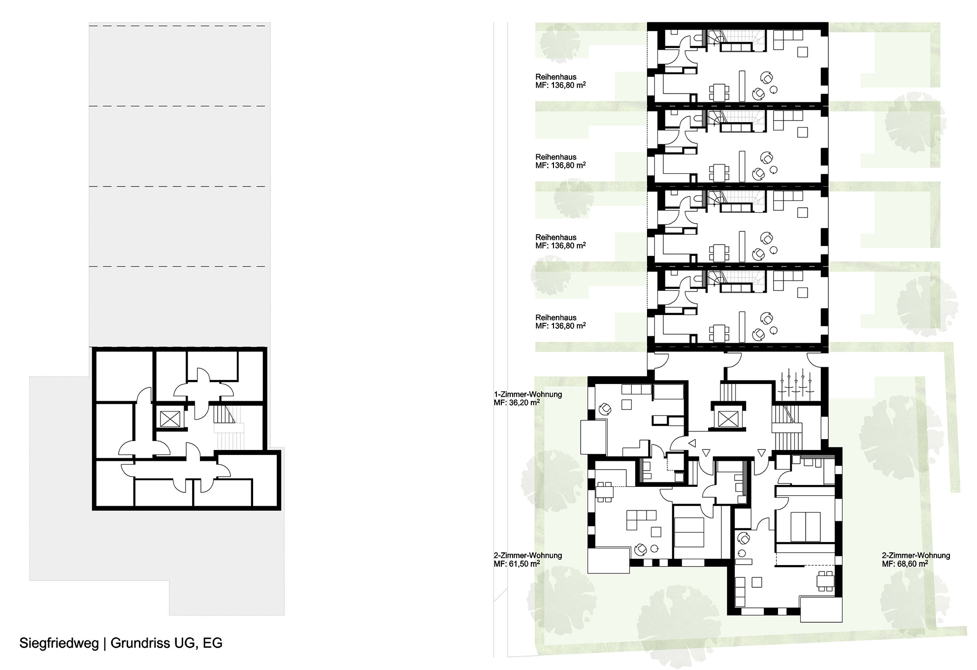
Am Siegfriedweg soll als Abschluss der Bebauung ein zweigeschossiges Wohngebäude als Dreispänner mit Staffelgeschoss sowie vier, gut als Mietobjekt geeignete Reihenhäuser, entstehen. Dies ist grundsätzlich ein wirtschaftlicherer Ansatz,  gleichwohl ein weiterer, normativ barrierefrei auszuführender Geschosswohnungsbau auch möglich wäre.

Für jede Wohnung ist ein PKW-Stellplatz vorgesehen, wobei 27 Stellplätze zentral in einer eingeschossigen Tiefgarage in der Hagenbleckstraße angeordnet sind. Sämtliche Wohnungen des Geschosswohnungsbaus sind gemäß NBauO barrierefrei (3 Wohnungen rollstuhlgerecht) geplant.

 

Die Baukonstruktion wird als konventionelle Massivbauweise umgesetzt. Die gewählte Bruttogeschosshöhe von 3,00 m ermöglicht komfortable lichte Raumhöhen von 2,60 m bis 2,65 m.
Für die Ziegelfassaden schlagen wir am Siegfriedweg sand- / ockerfarbenes Material vor, die Hagenbleckstraße sollte mit einem rötlichen Ziegel ausgeführt werden.