Bürogebäude Berliner Allee

Bürogebäude Berliner Allee
Bauherr/Auftraggeber

Projekt Septima GmbH

Bauzeit
2010–2011
Standort

Berliner Allee 13, 30175 Hannover

BGF

4.960 m²

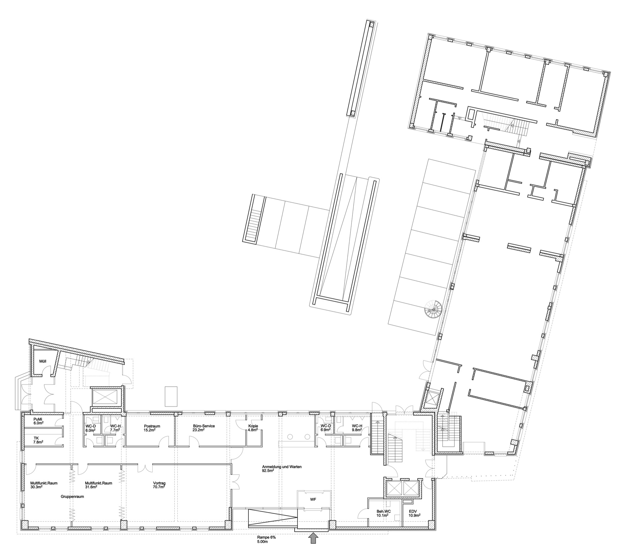
Das Gebäude wurde in seiner Gesamtheit einer Sanierung unterzogen. Die realisierten Maßnahmen beinhalteten: 

  • die Erneuerung der Gebäudehülle (Fassaden und Dach),
  • die Änderung der inneren Raumaufteilungen im Bauteil Berliner Allee einschl. Nutzungsänderung im Erdgeschoss,
  • geringfügige Eingriffe in das Tragwerk des Bauteils Berliner Allee durch Schaffung eines neuen Eingangsbereiches zur Berliner Allee, die Erneuerung der Gebäudehülle (Fassaden und Dach) gem. EnEV.


Es erfolgte eine vollständige Erneuerung als Glas-/Aluminiumkonstruktion. Das Fassadengrundraster wurde erhalten. Die Konstruktion der Fenster als Wendeflügel war mit marktüblichen Systemen nicht mehr ohne Sonderkonstruktionen möglich. Daher wurden die Fensterflügel als Dreh-/Kippelemente in funktionsfähiger schmaler Ausführung unter Beibehaltung der transparenten Glasflächen je Fensterachse gestaltet. Zusätzlich wurde ein außen liegender Sonnenschutz integriert.

 

Die Vorhangfassade erhielt, durch Flächenreduktion auf das funktional erforderliche Maß, eine zur Berliner Allee bzw. zum Stadtzentrum ausgerichtete Rahmung mit Metallprofilen und geschlossenen Flächen. Gestalterisch wurde hierdurch gleichzeitig eine stärkere Akzentuierung der Gebäudeteile erreicht.

 

Die nicht mit Vorhangfassaden belegten Flächen wurden mit einer Bekleidung als Wärmedämmverbundsystem (dunkler Farbton) versehen. Durch die Rahmung der Alu-Glas-Flächen konnte auch eine aus der Ferne wahrzunehmende Gliederung der Fassade erzielt werden.

 

Die Erdgeschossfassaden der Bauteile Berliner Allee und Heinrichstraße wurden weitestgehend geschlossen und durch rhythmisierte Einzelöffnungen, integriert in geschlossene Wandflächen mit WDVS, ersetzt. In dem Bauteil Bernstraße blieb die Fassade in ihrer Gestalt erhalten. Sie wurde lediglich nach EnEV-Kriterien saniert.

 

Insgesamt zeigen die Fassaden der drei Bauteile heute ein ganzheitlicheres Erscheinungsbild, in dem grundsätzlich nur noch zwei Materialkomponenten prägend sind: Putzoberflächen im Bereich der geschlossenen Flächen und Glasflächen im Bereich der Vorhangfassade/Einzelfenster.